20241115 213037

Custom Glass Shower Door Installation in Toronto & GTA

Frameless, Sliding & Hinged Doors

Upgrade your bathroom with a sleek, frameless glass shower that adds light, luxury, and space.

At Magic Reno, we design and install frameless, sliding, corner, and walk-in glass enclosures across Toronto & the GTA — delivering precision, speed, and lasting quality craftsmanship.

Book Free Consultation

Get a Free In-Home evaluation!

Anywhere in the GTA







    insurance policy

    Insured Installers: WSIB, $2M Liability Insured

    installer

    3–10 Days Turnaround From Measurement

    Warranty

    2-Year Workmanship Warranty + Manufacturer Hardware Coverage

    Google rating

    (5.0) Rated 40+ Five-Star Google Reviews

    Video reviews

    video review bathroom renovation in Brampton 1
    bathroom1 video
    small bathroom renovation video feedback
    video reviewes kitchen&bathroom renovation
    bathroom video review
    shower review
    basement shower videoreview
    videoreview8
    videoreview9
    videoreview11
    videoreview10

    Types of Glass Showers and Doors

    Bathtub to shower. Frameless sliding glass shower door with matte black hardware in a modern bathroom, with a wood slat accent wall inside

    Frameless Glass Enclosures (10–12 mm)

    Minimal hardware + maximum light flow = luxury spa look.

    Modern bathroom renovation with tub and glass sliding doors, wall niche and rain shower head

    Sliding Glass Doors

    Space-saving solution with quiet rollers — ideal for condos and tight layouts.

    Glass Enclosure A spacious custom shower enclosure made of thick tempered glass (frameless) with a hinged door and hardware in a matching brass finish

    Hinged (Swing) Doors

    Classic wide entry and timeless style for larger baths.

    Corner & Neo Angle Enclosures

    Corner & Neo-Angle Enclosures

    Smart geometry and mitered angles for perfect fit and watertight joins.

    Bathroom renovation in King City. Walk in shower with frameless glass, a vertical wooden slat accent wall, and a matte black rain shower. Modern bathroom renovation, Magic Reno design

    Walk-In Panels / Fixed Screens

    Open-concept design with no door — modern, minimal and easy to maintain.

    Elegant bathroom remodel with tub, beige stone look tiles, and matte black shower system

    Glass Tub Screens

    Elegant upgrade from curtains that adds value and clarity.

    Not sure which fits your space?

    Frameless Glass Shower Enclosures with Wall to Glass Support Bar

    Glass Shower Installation
    Cost & Pricing
    (Toronto & GTA)

    Labour Only (If you supply glass): Starting at $500 + HST

    Custom frameless projects: from $1,000 – $3,500 + HST, depending on size and number of panels

    Example Estimates

    Type Description Est. Cost (CAD)
    Single Panel / Fixed Screen One tempered glass panel with premium hardware + installation ≈ $1,000 + HST
    Sliding Door System 2 panels + roller track system + installation ≈ $1,500 + HST
    L-Shape Frameless 46×36×76 in (10 mm) custom glass — 3 panels + premium hardware + installation ≈ $1,940 + HST
    Custom Steam Enclosure Fully sealed glass with vents (3+ panels) + hardware + installation $2,500 – $3,500 + HST

    Final price depends on enclosure size, glass thickness, and hardware selection.

    Book Measurement Now
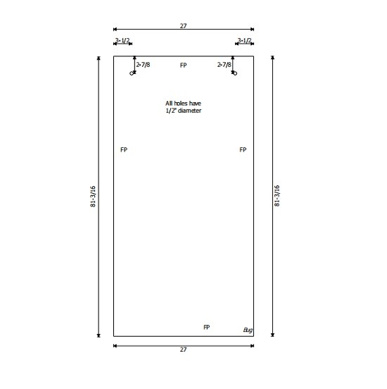
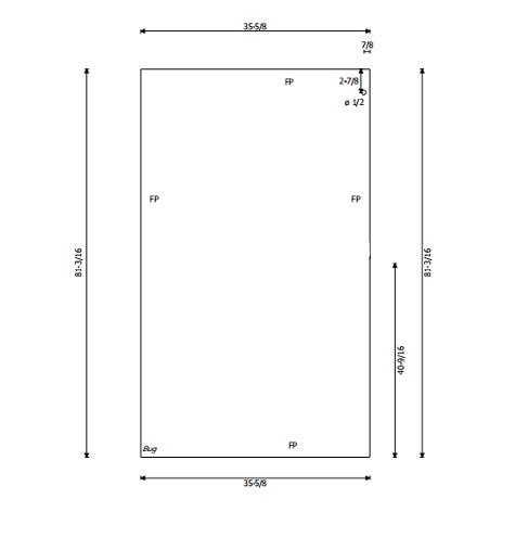
    RAPHEAL project
    Measurements
    RAPHEAL Measurements
    Measurements p3
    Templates

    Precision Measurement & Technical Glass Drawings

    Every custom shower enclosure begins with precise measurements and detailed fabrication plans.
    Our team uses laser measurement tools to capture every millimetre of your shower space, ensuring flawless fit and watertight alignment.

    What You’ll Receive Before Production:

    • Scaled technical drawings showing exact glass panel sizes, hole placements, and hinge locations

    • PDF layout for client review and approval before glass fabrication

    • Drawings optimized for hardware compatibility and production accuracy

    • See sample diagrams — real examples of approved shower glass designs prepared for manufacturing

    These technical blueprints guarantee that your glass enclosure is built and installed with millimetre-level precision — eliminating on-site surprises and delays.

    Glass Upgrades & Enhancements: Low-Iron, Coating & Privacy Options

    • Starphire Low-Iron Ultra-Clear Glass — true color visibility
    • Nano Protective Coating (Diamond-Fusion / Invisible Shield) — 90 % less staining
    • Anti-Shatter Safety Film (Fleurco Sekur) — added protection
    • Frosted / Tinted / Etched Designs — privacy and style
    • Custom Printed Patterns — logos or unique graphics
    Book Design Consultation
    Bathtub to shower conversion. Steam shower floor with herringbone tiles and brass drain
    woodbridge master bathroom renovation toilet area installation enclosed glass panels glass door 2

    Our 6-Step Installation Process

    1. Free Consultation (online / phone)
    2. Laser Measurement & Assessment
    3. 3D Design & Approval
    4. Hardware Selection (Matte Black | Chrome | Gold)
    5. Fabrication & Tempering
    6. Professional Installation & Cleanup

    Shower Glass Replacement & Repair Services

    Leaking or dated unit? We handle:

    • Removal & eco-friendly disposal
    • Prep & levelling for new enclosure
    • Seal / roller / hardware replacement
    • Full custom rebuild with modern hardware
    Request Replacement Quote
    bathroom shower contractor

    FAQ

    Prices typically range from about $990 for a basic sliding door or single-panel enclosure to around $3,500 for a custom frameless shower.

    Proper slope and seals prevent leaks — we design for this.

    3–10 days total; install ≈ 2–5 hours.

    Yes — we handle board approvals & elevators.

    All installations include a 2-year workmanship warranty + manufacturer hardware coverage.

    Yes — we occasionally run limited-time promotions such as 10 – 15 % off installation or free in-home measurement.

     

    Get Inspired

    Gallery & Reviews

    Bathtub to shower. Frameless sliding glass shower door with matte black hardware in a modern bathroom, with a wood slat accent wall inside

    Sophia M., Toronto

    Flawless installation — our frameless shower looks amazing.

    insatallation curbless glass shower 3 custom niches tiled seat bathroom installation

    Kevin R., Mississauga

    They handled everything in 10 days with zero mess.

    Google Rating 5.0/5 (48)

    All Across the GTA

    AjaxAuroraBarrie •  Bolton • Bradford • BramptonBurlingtonCaledonEtobicoke • Georgetown • Hamilton • Innisfil • King CityKleinburgMarkham • Milton      

    MississaugaNewmarketNorth YorkOakvilleOshawaPickeringRichmond HillScarboroughThornhillToronto • Unionville • Vaughan WhitbyWoodbridge

    Close up of wide black recessed shower niche set into a vertical wood slat feature wall with amber soap bottles

    Ready to Start?

    Your dream shower is one consultation away.

    Free measurement, 3D preview & 3–10 day delivery — with 2-year warranty.

    Book My Consultation

    Get a Free Consultation